秋田でリフォームをお考えならエブリキッチンへ。女性建築士ならではの観点で、皆様の暮らしをデザインいたします。
秋田でリフォームをお考えならエブリキッチンへ。
お問い合わせ
トップページへ エブリキッチンについて リフォーム実例 ブログ リンク集
 
新築住宅の建築実例

前のページへ戻る

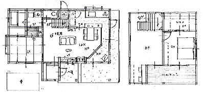
プランコンセプト > 自然を取り込んだ機能的動線計画

当初は内部に広くタタキスペースを設けて、だるまストーブを設置し、居間を吹き抜けにするプランニングをしましたが、暖房費を考慮した現実的なプランとなりました。
全部で10プランまでご提出しておりますが、ここでは途中の5プランまでご紹介します。


プラン1
プラン2
プラン3
プラン4
プラン5
   
Copyright(C)2005 Every-Kitchen All Rights Reserved.